News
最新消息
總覽
禮遇方案
設計新作
精選生活
專欄文章
About Us
業主推薦
Work
作品總覽
住宅空間
商業空間
3 D 渲染
Team
核心團隊
Award
得獎殊榮
Estimate
線上估價
Style Quiz
風格測驗
Contact Us
聯絡我們
Recruitment
人才招募
>
設計新作
>
【鴻騏建設 │ 初居,住宅內部空間設計中】
總覽
禮遇方案
設計新作
精選生活
專欄文章
最新公告
得獎殊榮
媒體報導
2021-06-20
文章引用自:
訴說,每一個空間的故事
呈現,每一個角落的美景
Interior Design
Design Your Perfect Day
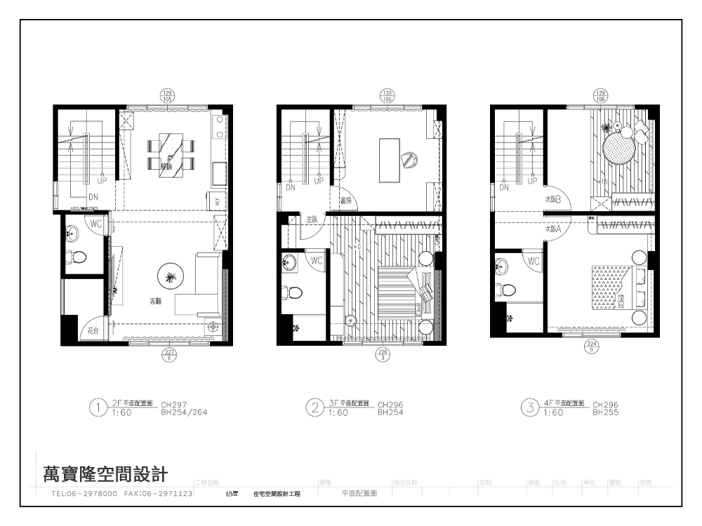
座落位置|台南市永康區
空間形式|住宅空間
案場進度|細部設計中
推文
【麗寶集團│福容ONE,施工曝光】
【臺邦建設 │ 悅河恬,住宅內部空間設計中】
人才招募
專人諮詢
線上估價