News
最新消息
總覽
禮遇方案
設計新作
精選生活
專欄文章
About Us
業主推薦
Work
作品總覽
住宅空間
商業空間
3 D 渲染
Team
核心團隊
Award
得獎殊榮
Estimate
線上估價
Style Quiz
風格測驗
Contact Us
聯絡我們
Recruitment
人才招募
>
設計新作
>
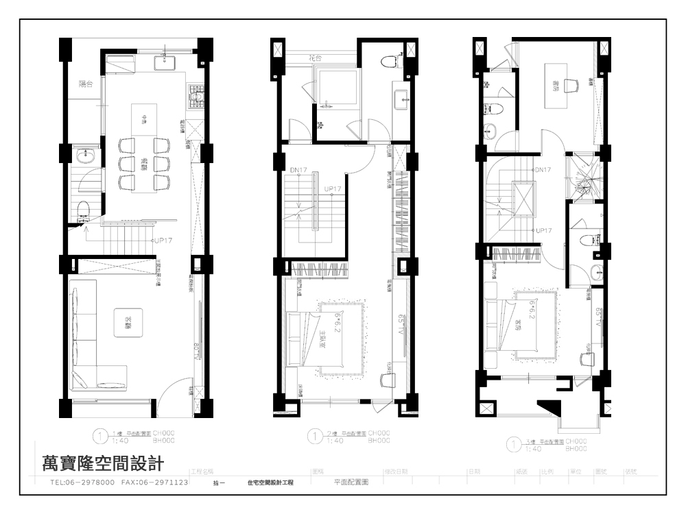
【鑫匱建設 │ 拾一,住宅內部空間設計中】
總覽
禮遇方案
設計新作
精選生活
專欄文章
最新公告
得獎殊榮
媒體報導
2021-10-04
文章引用自:
拾一處光景
置入一抹美感
傾聽生活與設計美學交織的美好
座落位置 | 台南市安南區
空間形式 | 住宅空間
案場進度 | 細部設計中
------------------------------------------------
◈
年終回饋抽iPhone 13 →
https://reurl.cc/dxe0kk
推文
【國泰建設│文府硯,施工曝光】
【聯上建築 │ 聯上海棠,住宅內部空間設計中】
人才招募
專人諮詢
線上估價