News
最新消息
總覽
禮遇方案
設計新作
精選生活
專欄文章
About Us
業主推薦
Work
作品總覽
住宅空間
商業空間
3 D 渲染
Team
核心團隊
Award
得獎殊榮
Estimate
線上估價
Style Quiz
風格測驗
Contact Us
聯絡我們
Recruitment
人才招募
>
設計新作
>
【僑昱建築 │ Sunny Life,住宅內部空間設計中】
總覽
禮遇方案
設計新作
精選生活
專欄文章
最新公告
得獎殊榮
媒體報導
2021-11-22
文章引用自:
以不同角度探索空間的面貌
以不同姿態呈現生活的美好
開啟一切空間的可能 ✦
製造每個驚喜的日常 ✦
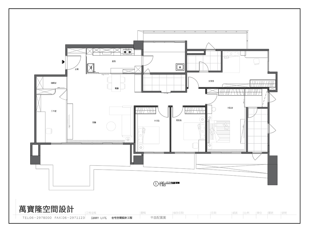
座落位置 | 台南市東區
空間形式 | 住宅空間
案場進度 | 細部設計中
------------------------------------------------
✦ 居家風格不迷惘,30秒測出你的命定風格
https://www.mb-design.com.tw/quizstart.html
推文
【麗寶集團 │ 福容ONE,施工曝光】
【海富建設 │ 山豐海富LM,施工曝光】
人才招募
專人諮詢
線上估價